【成約済】T’s Two Dタイプ【成約済】
ペット共生型デザイナーズアパート‼ 更新日:2024/1/1 次更新:2024/12/31 |
||||
| 交通 所在地 |
賃料 管理費等 |
敷金 礼金 |
間取り 面積 |
物件種別 建築年数 |
|---|---|---|---|---|
|
東武東上線「和光市」駅から徒歩9分 和光市中央1-6-27 |
-万円 -円 |
-万円 -万円 |
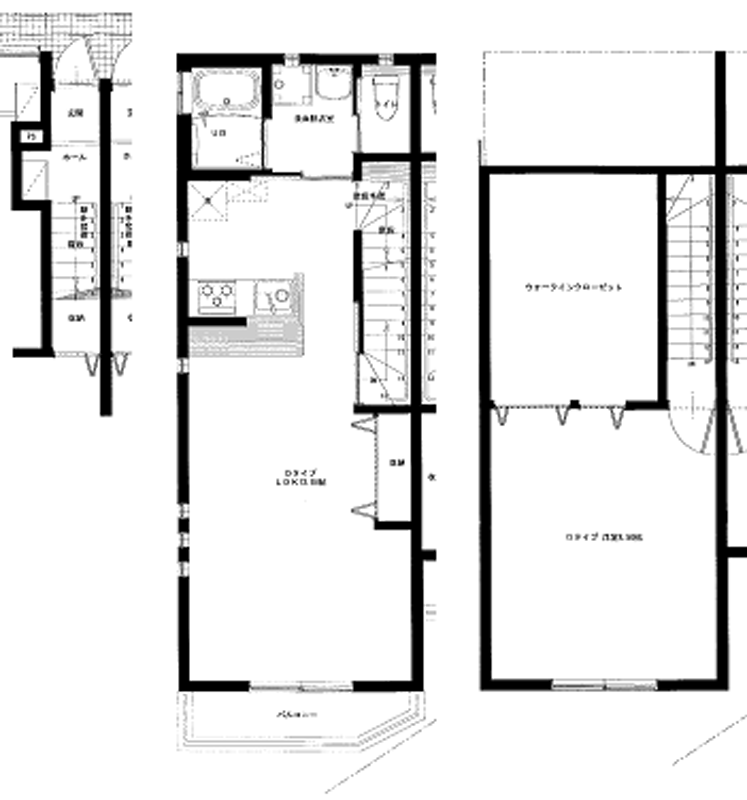
1LDK 62.1㎡ |
成約済 2013年9月 |
- システムキッチン
- カウンターキッチン
- ガスコンロ使用可
- 2口以上コンロ
- バス・トイレ別
- 追焚き機能
- 浴室乾燥機
- 浴室暖房
- シャワー付洗面化粧台
- 洗面所独立
- 温水洗浄便座
- エアコン
- 収納スペース
- ダブルロック
- モニタ付インターホン
- ディンプルキー
- 2階以上
- 最上階
- 1階
- 2人入居可
- ペット相談
- フローリング
- 室内洗濯機置き場
- プロパンガス
- メゾネット
- デザイナーズ
- バルコニー
- 駐輪場
- 喫煙不可
- 保証会社必須
- 24時間緊急サポート必須(16,500円)
賃貸物件概要詳細
| 交通機関 | 東武東上線「和光市」駅から徒歩9分 東京メトロ有楽町線「和光市」駅から徒歩9分 東京メトロ副都心線「和光市」駅から徒歩9分 |
||
|---|---|---|---|
| 間取詳細 | |||
| 建物構造 | 木造 | 階建/階 | 2階建/1~3階 |
| 駐車場 | 無 | 駐車場料金 | -円 |
| 主要採光面 | 取引態様 | 専任媒介 | |
| 契約期間 | 2年間 | 保険 | 22,500円 |
| 更新料 | 新賃料の1ヶ月分 | 鍵交換代 | 任意 |
| 入居日 | 現況 | ||
| 備考 | ペット可物件です。ペットは小型犬、猫OK!大事なペットと快適新生活!!
※ペット飼育の場合、礼金2ヶ月になります。※ペット審査・ペット特約有り 3階部分は、屋根の形状を活かした勾配天井になります 駐輪スペース1台分有り ■保証会社/日本セーフティー株式会社 〇初回保証料/賃料等総額50%(1年間)以降、1年毎に10,000円 〇口座振替手数料/330円(毎月)※借主負担 |
||
所在地のMAP
所在地までの交通機関
- ■所在地
- 和光市中央1-6-27
- ■交通機関1
- 東武東上線「和光市」駅から徒歩9分
- ■交通機関2
- 東京メトロ有楽町線「和光市」駅から徒歩9分
- ■交通機関3
- 東京メトロ副都心線「和光市」駅から徒歩9分



















